This project restored Fitchburg’s 1853 Italianate City Hall while reconfiguring its interior to support a modern, accessible municipal workplace. The historic exterior—including brick masonry, brownstone, terracotta detailing, and slate roof—was carefully repaired, and the original public entry was reestablished as the primary accessible entrance.
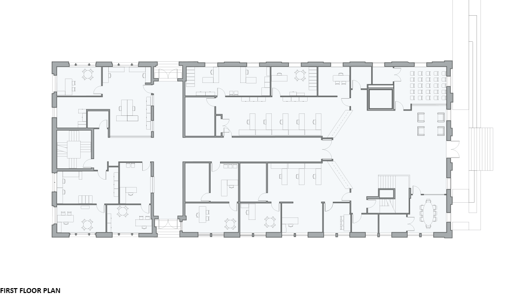
Significant structural deterioration in the 1879 addition required selective reconstruction, allowing new floor levels to align with the original building and improve accessibility. The interior now accommodates fourteen administrative departments organized around intuitive wayfinding, with transaction counters clearly visible upon entry and daylight shared throughout via double-height circulation spaces.
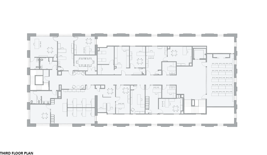
A third floor was inserted within the former auditorium volume to house administrative offices and a flexible training room, while a neighboring 1980s bank building was converted into the City Council Chambers. The former banking hall now seats up to 120 occupants and supports both daytime and evening public use.
















