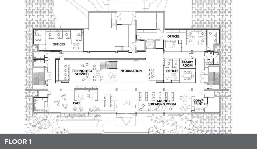
Transforming the existing library, a 1971 Brutalist-style concrete and brick building totaling 57,000 SF, into a modern Learning Commons meant virtually turning the building inside out.
Creating a vibrant place for students required overcoming the problems of a rigid structure with a deep building footprint, little daylight and numerous building systems challenges. Dark glass and brick infill panels were replaced with externally shaded windows. The building has been transformed into a naturally lit student-centered academic hub during the day and a luminous campus beacon at night. The new first floor (previously the basement) of the Learning Commons now houses a 24-hour Reading Room with Information and Technology Services desks. Floor openings and a monumental stair give access to the second floor “Hub”, while an internally illuminated “Lightwall” rises through both floors. The second floor is home to the Hub lounge, open study space, a collaborative presentation space known as “The Forum”, as well as research consultation and digital media workstations. On floors 3 and 4, cellular spaces are moved to the middle of the plan so that students can occupy the day lighted perimeter. In addition to open study space, the third-floor houses group study rooms (seating 4-6), the academic success center and flexible instructional spaces. The fourth floor is dedicated to quiet study, it is home to the Karpovich Reading Room, the book stacks, library services staff, a flex classroom, the Center for Excellence in Teaching, Learning and Scholarship, and a technology rich conference room. Furniture selection was a central part of the design process for the Learning Commons. Great care was taken in developing the furniture package, including an on-campus “test fit” of all the significant furniture pieces with feedback from students, faculty, and staff















